
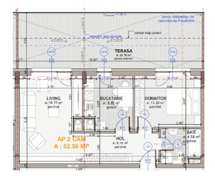
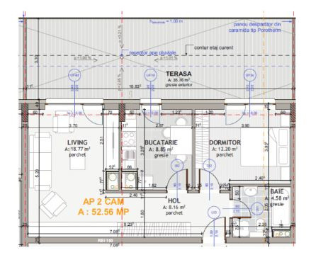
Va propunem spre vanzare acest apartament de o camera situat intr-un ansamblu rezidential nou construit in zona Eroilor. Apartamentul dispune de o suprafata utila de 52.56 mp plus un balcon de 35.76 mp, compartimentarea este semidecomandata si se prezinta astfel: hol, living, bucatarie, dormitor, baie si o terasa de 35.76 mp. Se va preda la stadiul de semifinisat dispune de centrala termica proprie si sistem de incalzire prin calorifere, geamuri tripan, usa antiefractie. Pretul afisat este valabil doar pentru plata integrala.
Constructia are structura de beton armat iar compartimentarile interioare sunt din caramida, atat intre apartamente cat si intre camere dispunand de o izolatie fonica si termica foarte buna.
Separat se poate achizitiona parcare exterioara la pretul de 6000 euro sau parcare subterana la pretul de 8000 euro.
Pentru mai multe informatii nu ezitati sa ne contactati. ID Extern: P208325