
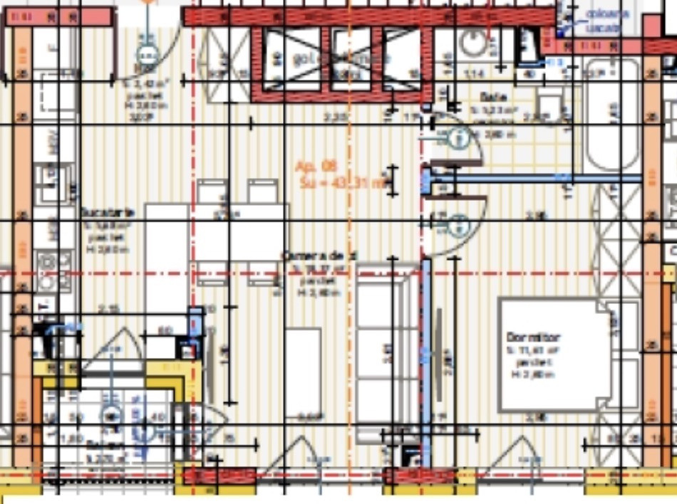
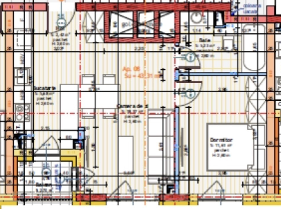
Va propunem spre vanzare acest apartament de 2 camere situat intr-un ansamblu rezidential nou construit in zona Somesului. Apartamentul dispune de o suprafata utila de 43 mp plus un balcon de 3 mp, compartimentarea este semidecomandata si se prezinta astfel: hol, living open space cu bucatarie, dormitor si baie. Se va preda la stadiul de semifinisat dispune de centrala termica proprie si sistem de incalzire prin calorifere, geamuri tripan, usa antiefractie. Exista posibilitatea de se preda finisat la pretul de 92.770 euro. Constructia are structura de beton armat iar compartimentarile interioare sunt din caramida, atat intre apartamente cat si intre camere dispunand de o izolatie fonica si termica foarte buna. Separat se poate achizitiona parcare exterioara la pretul de 5600 euro sau parcare subterana la pretul de 9520 euro. Pentru mai multe informatii nu ezitati sa ne contactati. ID Extern: P237307