
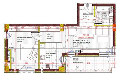
Va propunem spre vanzare acest apartament de o camera situat intr-un ansamblu rezidential nou construit in zona Tineretului. Apartamentul dispune de o suprafata utila de 50.9 mp plus un balcon de 5.88 mp, compartimentarea este semidecomandata si se prezinta astfel: hol, living open space cu bucatarie, dormitor si baie. Se va preda la stadiul de semifinisat (imaginile sunt cu titlu de prezentare) dispune de centrala termica proprie si sistem de incalzire prin calorifere, geamuri tripan, usa antiefractie.
Pretul este valabil doar la plata integrala.
Constructia are structura de beton armat iar compartimentarile interioare sunt din caramida, atat intre apartamente cat si intre camere dispunand de o izolatie fonica si termica foarte buna.
Separat se poate achizitiona parcare exterioara la pretul de 4000 euro sau parcare subterana la pretul de 7000 euro.
Pentru mai multe informatii nu ezitati sa ne contactati. ID Extern: P208567