
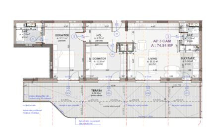
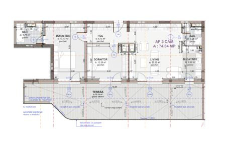
Va propunem spre vanzare acest apartament de o camera situat intr-un ansamblu rezidential nou construit in zona Eroilor. Apartamentul dispune de o suprafata utila de 74.84 mp plus o terasa de 50.05mp, compartimentarea este semidecomandata si se prezinta astfel: hol, living impreuna cu bucataria, doua dormitoar, doua bai si o terasa de 50.05mp. Se va preda la stadiul de semifinisat dispune de centrala termica proprie si sistem de incalzire prin pardoseala, geamuri tripan, usa antiefractie. Pretul afisat este valabil doar pentru plata integrala.
Constructia are structura de beton armat iar compartimentarile interioare sunt din caramida, atat intre apartamente cat si intre camere dispunand de o izolatie fonica si termica foarte buna.
Separat se poate achizitiona parcare exterioara la pretul de 6000 euro sau parcare subterana la pretul de 8000 euro.
Pentru mai multe informatii nu ezitati sa ne contactati. ID Extern: P208325