







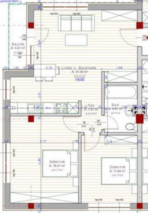
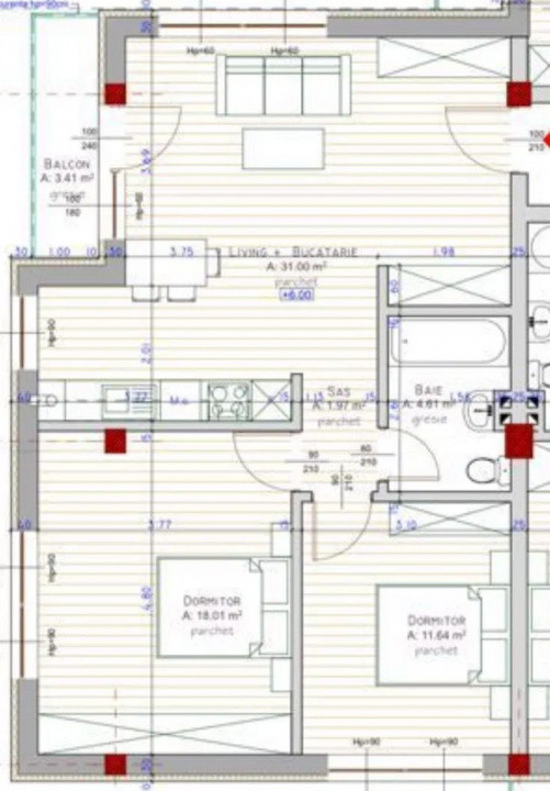
Va propunem spre vanzare un apartament de 3 camere cu suprafata utila de 67 MP utili, pe strada Teilor, Florești. Apartamentul este situat la etajul 2 al unui imobil cu regim de inaltime P+3. Compartimentarea este semidecomandata si se prezinta astfel: hol intrare, living cu bucătărie de tip de tip open-space, 2 dormitoare, 1 dressing, 1 baie și 1 balcon de 3,4 mp. Apartamentul se vinde mobilat și utilat exact cum se vede în poze. Apartamentul se afla intr-o zona buna cu acces facil la puncte de interes precum: magazine, școală, sala de sport, spații verzi, stații de autobuz, etc. De asemenea se poate inchiria si 1 loc de parcare la pretul de 200 lei/luna. Pentru mai multe detalii sau stabilirea unei vizionari nu ezitati sa ne contactati! ID EX: P222474