


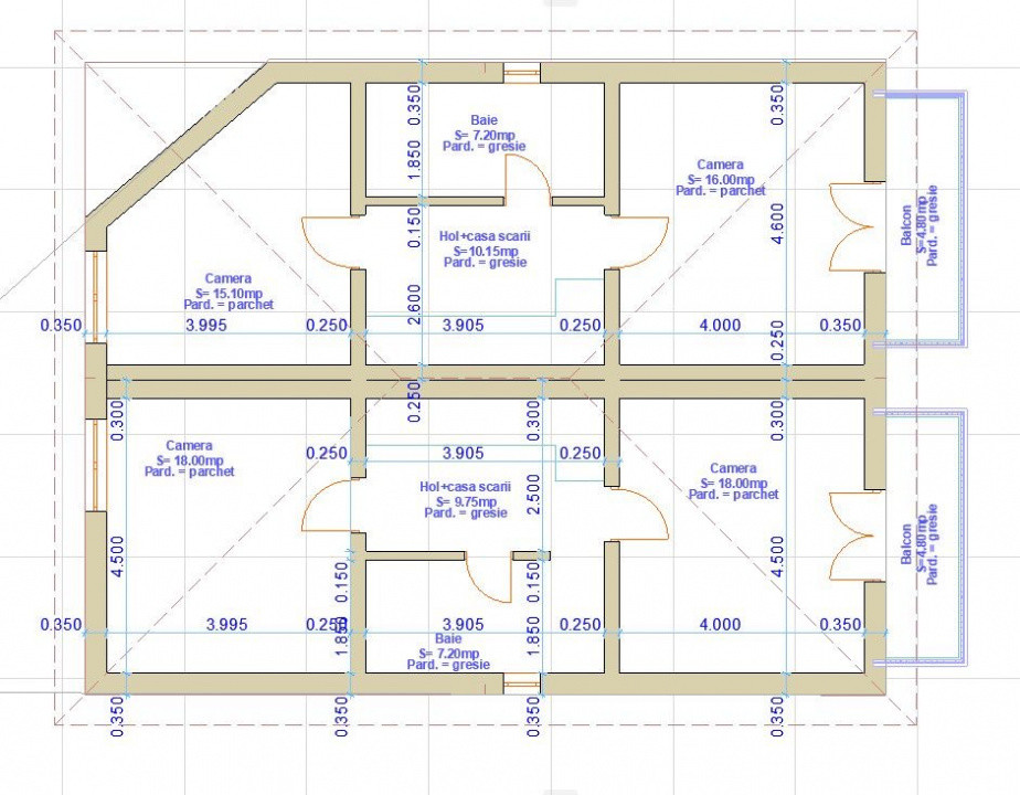
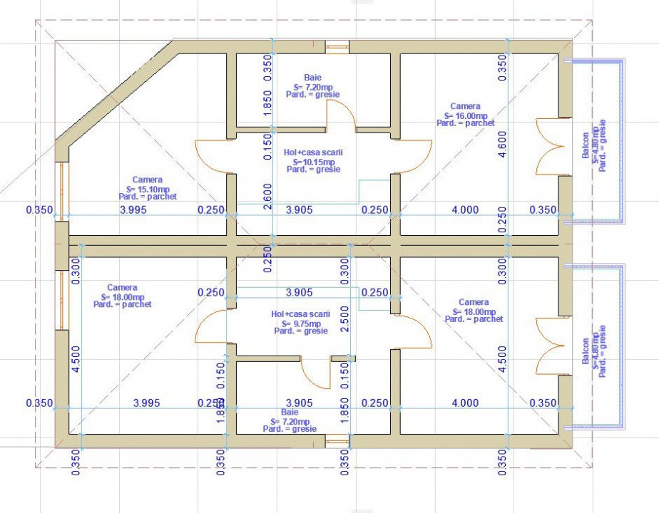
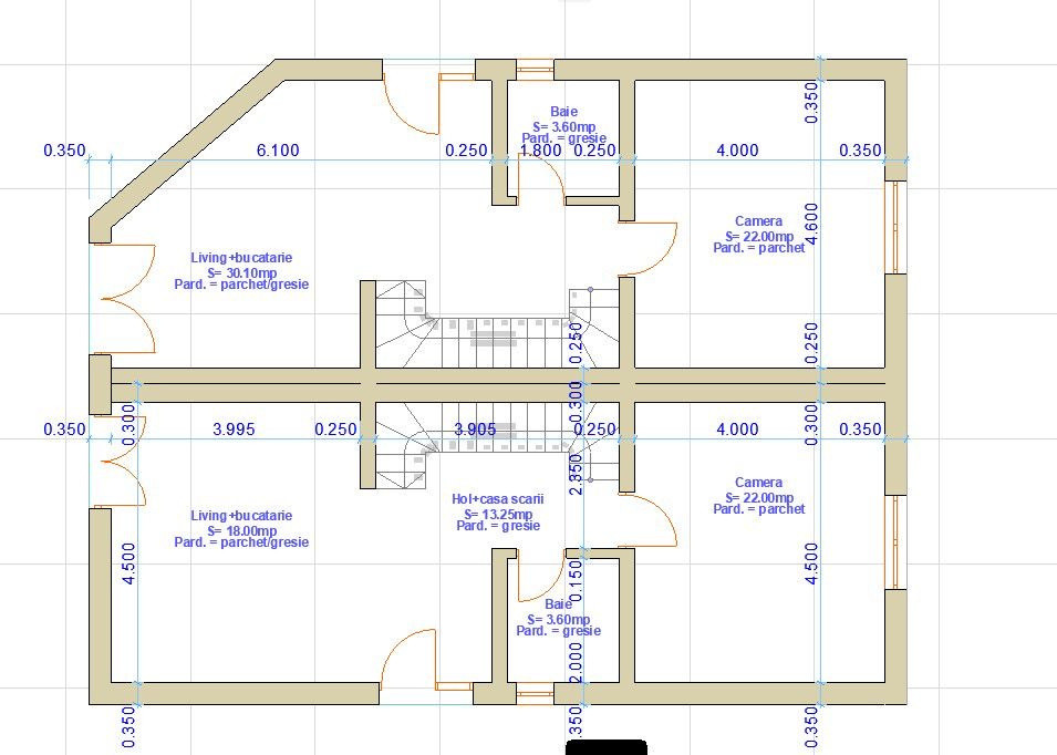
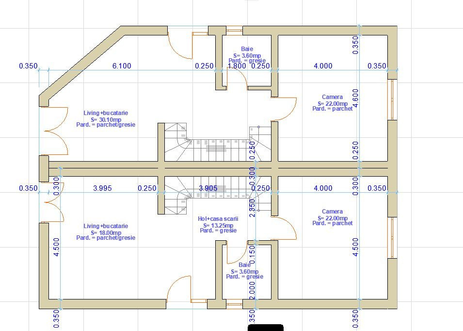
Va oferim spre vanzare un duplex situat in zona Fagului din Florești, într-o zonă liniștită și aerisită, cu vedere directă către Floresti. Imobilul are o suprafață utilă de 120 mp și un teren aferent de 240 mp, fiind ideal pentru o familie care își dorește confort, intimitate și spațiu. Construcția este realizată din materiale de calitate superioară, precum cărămidă Cemacon, izolație de 15 cm EPS 80, țiglă ceramica, tâmplărie PVC tripan cu trei garnituri și baghete de încălzire, jgheaburi și burlane dintr-o singură bucată din aluminiu. La parter se află un hol generos, living impreuna cu bucatarie open space, o baie si o camera, iar la etaj sunt 2 dormitoare, băie și un balcon. Podul oferă spațiu suplimentar pentru depozitare, iar confortul termic este asigurat prin sistem de încălzire în pardoseală atât la parter, cât și la etaj. Duplexul se află într-o zonă în dezvoltare, cu acces facil către principalele puncte de interes din Florești.
Pentru mai multe detalii sau pentru a stabili o vizionare nu ezitati sa ne contactati. ID EXTERN: P219973