





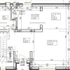
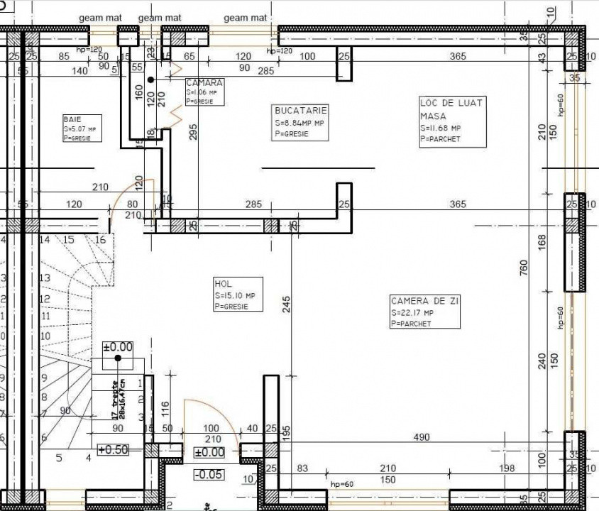
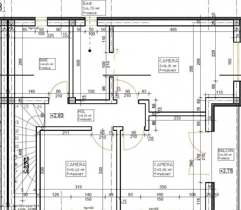
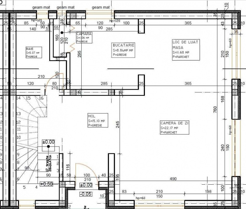
Va oferim spre vanzare un duplex P+E, situat într-un ansamblu rezidențial privat finalizat, aflat în curs de intabulare, amplasat în Florești, pe strada Avram Iancu. Ansamblul este desfasurat pe o suprafață de 2.100 mp și este compus din trei unități tip duplex și o casă individuală, oferind un cadru organizat și aerisit. Deși poziționat central în Florești, imobilul beneficiază de liniște și intimitate, fiind situat în partea din spate a ansamblului, cu acces facil și mai mult spațiu exterior. Construcția este realizată din materiale de calitate superioară, este racordată la toate utilitățile, iar fiecare unitate dispune de două locuri de parcare proprii. Casa are o suprafață utilă de 124 mp, la care se adaugă un balcon de 5 mp, teren aferent de 260 mp și aproximativ 90 mp cotă parte din drumul de acces. Compartimentarea este practică și bine gândită, parterul fiind compus din hol de acces, living generos cu zonă de luat masa, bucătărie separată și baie, iar etajul include trei camere, două băi, hol și balcon. Proprietatea se predă la stadiul de semifinisat, cu ferestre termopan, ușă metalică, încălzire în pardoseală la parter și etaj, centrală termică individuală, pereți gletuiți, instalații electrice și sanitare pe poziții, precum și curte exterioară amenajată, reprezentând o opțiune ideală pentru o locuință de familie modernă, într-o zonă bine conectată, dar ferită de agitație.
Pentru mai multe detalii sau pentru a stabili o vizionare nu ezitati sa ne contactati. ID EXTERN: P225858