



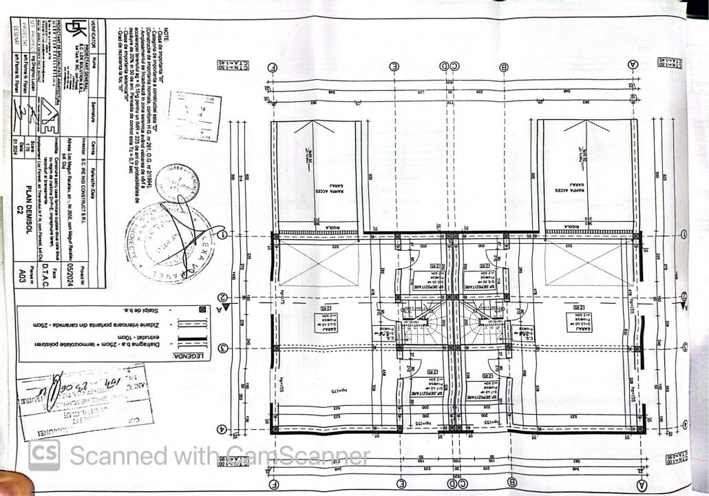
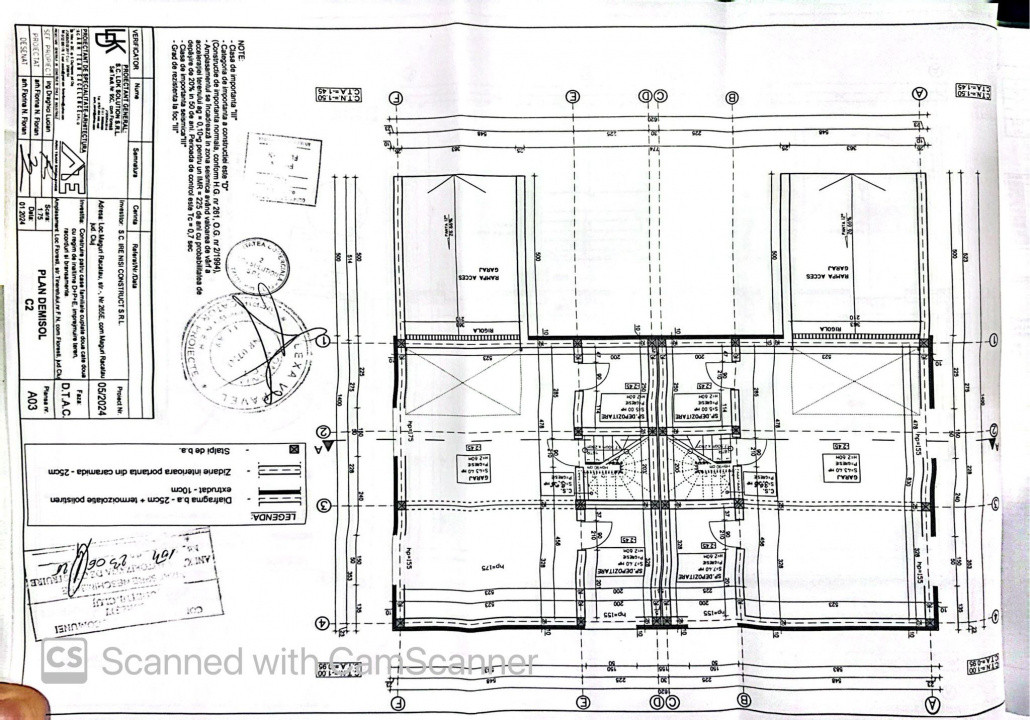
Va propunem spre vanzare un duplex spatios si luminos amplasat intr-o zona linistita, cu multa verdeata si usor accesibila, in zona Tineretului, la doar 15 min de Cluj Napoca. Casa dispune de o suprafata utila de 160 mp, compartimentarea este semidecomandata si se prezinta astfel: Subsol: garaj cu camera tehnica, Parter: hol, living, bucatarie, baie, si dressing Etaj 1: hol, dormitor matrimonial cu baie proprie si dressing, doua dormitoare si baie. Duplexul are orientare est/vest avand lumina naturala pe tot parcursul zilei. Casa se va preda semifinisata si va dispune de centrala proprie, incalzire in pardoseala cu distribuitor la fiecare etaj, geamuri triple Rehau cu tamplarie PVC.
Pentru mai multe informatii sau stabilirea unei vizionari nu ezitati sa ne contactati. ID Extern: P217004