





Va propunem spre vanzare un teren cu suprafata de 1260 mp si un front la strada de aproximativ 20m.
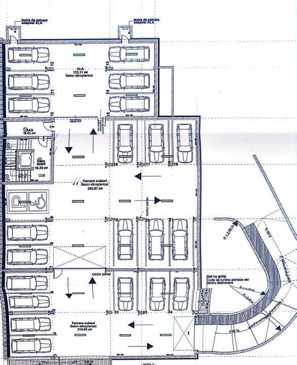
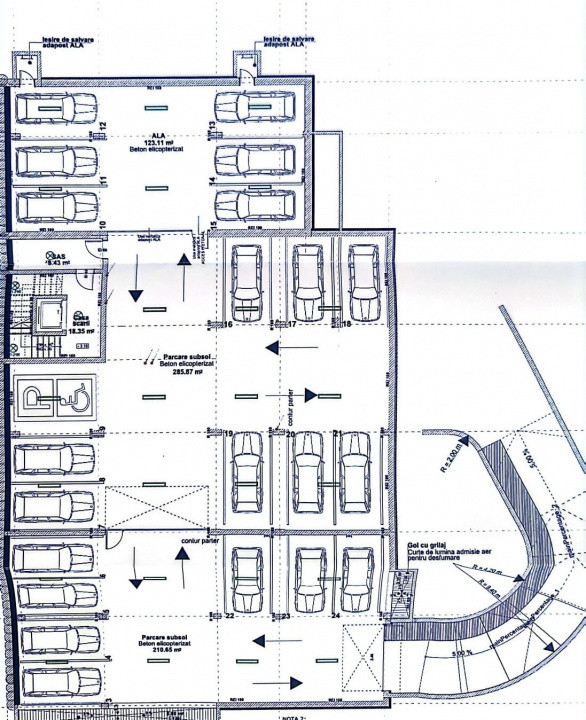
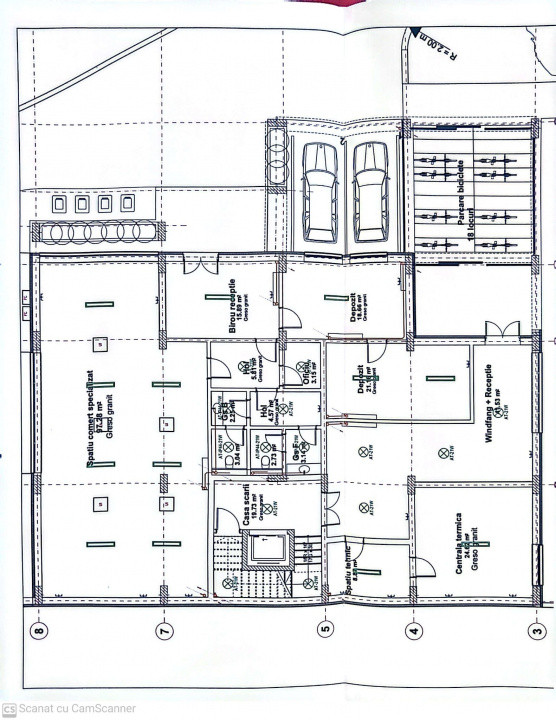
Regimul de inaltime pentru bloc: S+P+5E+ER avand o suprafata utila pe etaj de aproximativ 2226 mp pentru cele 24 de apartamente de 2, 3 si 4 camere la care se adauga un spatiu comercial la parter de aproximativ 100mp.
Terenul este pozitionat în apropiere de Kaufland Marasti, dispune de HCL si dosar pentru Documentatia tehnica pentru obtinerea autorizatiei de construire a unui imobil cu functiune mixta.
Pentru mai multe detalii sau pentru a programa o vizionare nu ezitati sa ne contactati. ID EXTERN: P212852